
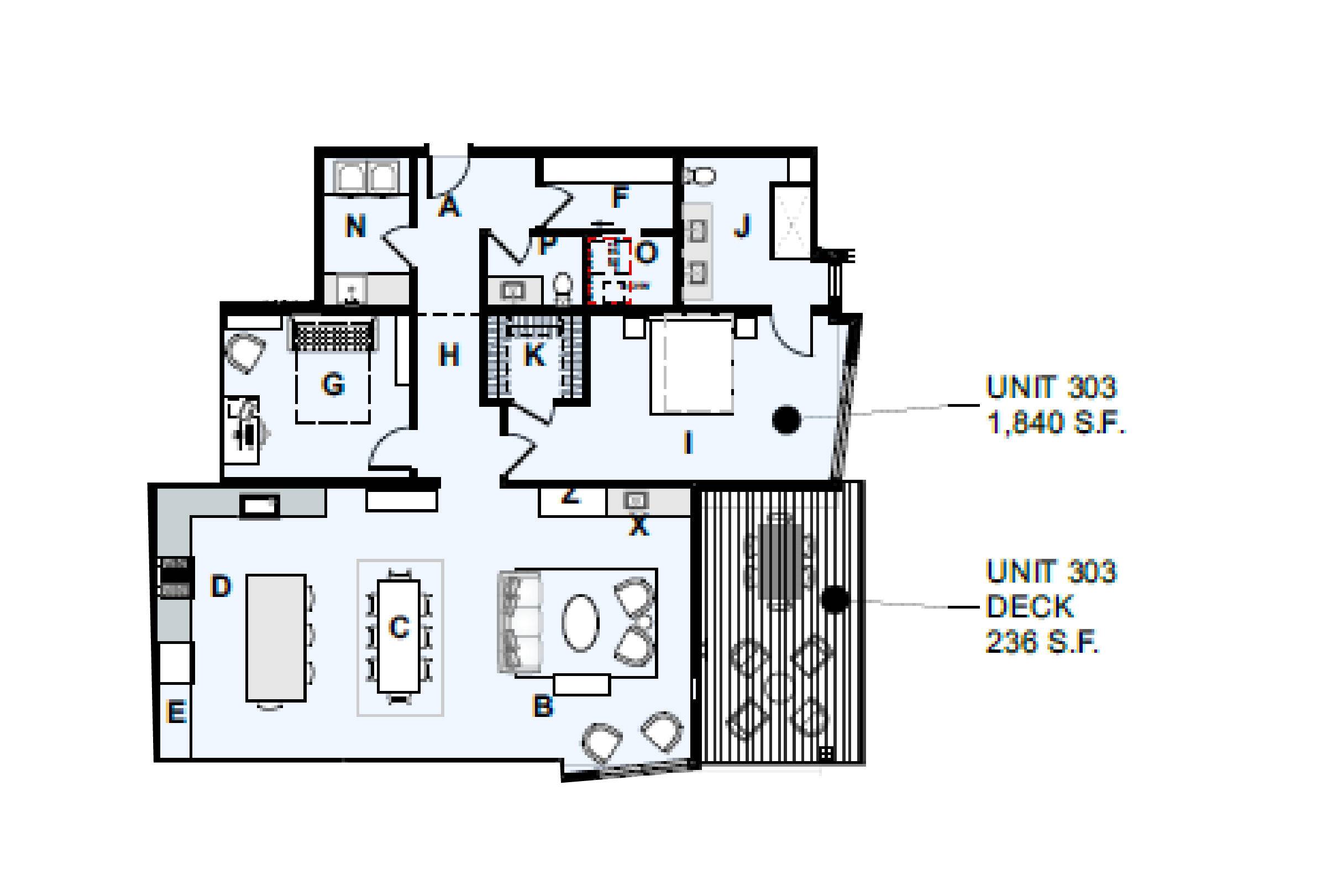
246 Eastern Promenade #303 Portland, ME 04101
1 Bed
2 Baths
1,840 SqFt
UPDATED:
Key Details
Property Type Residential
Sub Type Condominium
Listing Status Active
Square Footage 1,840 sqft
MLS Listing ID 1608120
Style Contemporary
Bedrooms 1
Full Baths 1
Half Baths 1
HOA Y/N Yes
Abv Grd Liv Area 1,840
Year Built 2025
Annual Tax Amount $9,999
Tax Year 2024
Lot Size 0.640 Acres
Acres 0.64
Property Sub-Type Condominium
Source Maine Listings
Land Area 1840
Property Description
Only 8 Residences Remain | Completion Mid-Fall 2026 This extraordinary new address in one of Portland's most coveted neighborhoods. Perched above Casco Bay on the grassy sweep of the Eastern Promenade, this limited collection of just 13 architecturally striking condominiums marks the first residential development on this iconic stretch in over 50 years. Each residence has been thoughtfully designed for those who appreciate timeless elegance, elevated craftsmanship, and a connection to place. Floor-to-ceiling windows & private decks capture views of Casco Bay, while open-concept interiors with 9-10 ft ceilings and abundant natural light create an airy, modern atmosphere.
Custom interiors feature generous allowances for premium finishes, including custom-built kitchen & bath cabinetry by Pond Cove Millworks—offering a refined and highly tailored living experience and allow owners to create a home that reflects their own sense of style. Nichiha Architectural Fiber Cement Siding, energy-efficient Pella windows, top-tier HVAC systems, garage parking, and private climate-controlled storage room ensure comfort and convenience year-round.
Located in the heart of Portland's desirable East End, 246 Eastern Promenade offers a lifestyle that blends serenity with vibrant coastal city living. Enjoy morning walks or cycling along the Eastern Trail, kayak from the East End beach, visit historic landmarks like the Portland Observatory & Allen Park Gazebo, or take in the expansive green space that rolls directly to the shoreline. Just a short stroll away, you'll find world-class restaurants, charming cafés, galleries, and the celebrated Old Port. Construction is well underway with the foundation nearly complete and work progressing steadily. Early contracts offer expanded customization options, allowing you to tailor your home to your vision.
Pricing begins at $1.8M. Reach out today for floor plans, detailed specs, and to walk the site.
Location
State ME
County Cumberland
Zoning R6
Body of Water Casco Bay
Rooms
Basement Interior, Full
Primary Bedroom Level First
Living Room First
Dining Room First
Kitchen First Island
Interior
Interior Features Walk-in Closets, Elevator Passenger, 1st Floor Primary Bedroom w/Bath, Bathtub, One-Floor Living, Shower, Storage, Primary Bedroom w/Bath
Heating Radiant, Heat Pump
Cooling Heat Pump
Flooring Wood, Tile
Fireplaces Number 1
Fireplace Yes
Appliance Washer, Refrigerator, Microwave, Electric Range, Dryer, Dishwasher
Laundry Laundry - 1st Floor, Main Level
Exterior
Parking Features Heated, Reserved Parking, Basement, 1 - 4 Spaces, Paved, Common, Underground
Garage Spaces 1.0
View Y/N Yes
View Scenic
Roof Type Flat
Street Surface Paved
Porch Deck
Garage Yes
Garage Yes
Building
Lot Description Well Landscaped, Sidewalks, Near Public Beach, Near Town, Neighborhood
Foundation Concrete Perimeter
Sewer Public Sewer
Water Public
Architectural Style Contemporary
Structure Type Fiber Cement,Steel Frame,Wood Frame
Schools
School District Portland Public Schools
Others
Security Features Sprinkler,Security System
Energy Description Electric







